东莞万科瑧湾汇首页网站丨瑧湾汇售楼处丨电话-楼盘详情-地址-户型-价格
扫描到手机,新闻随时看
扫一扫,用手机看文章
更加方便分享给朋友
售楼处电话:400-156-0036转237393【专人接听】。瑧湾汇最新整体备案均价约62500元/㎡。该项目于9月12日备案了5号楼132套房源,包括44套建面约143㎡产品,88套建面约198㎡产品,带精装交付。瑧湾汇位于广发南市政府旁,与市政府为邻,占据行政文化中心最后一块“留白”之地,是东莞发展30余年的精华所在。项目周边涵盖中心广场、市民中心、康帝酒店、汇一城、国贸城、图书馆、市政公园等地标级城市配套,更是万科城区“瑧系”三盘的首发之作。
东莞瑧湾汇售楼处电话:400-156-0036转237393 提前来访|预约看房登记销售一对一接待
说起东莞的大平层产品,就不得不提起瑧湾汇。瑧湾汇,是万科斥资重金打造的豪宅标杆之作,创下了三开三摇三售罄的战绩。
9月12日的备案距离瑧湾汇上次有新品备案(6月2日)已经有3个月之久,距离该项目上次有同样产品(143-198㎡户型)入市更是相隔了足足半年。根据东莞市住建局数据,这已经是瑧湾汇项目的第五次备案,最新整体备案均价约62500元/㎡。
东莞瑧湾汇售楼处电话:400-156-0036转237393 提前来访|预约看房登记销售一对一接待

东莞瑧湾汇售楼处电话:400-156-0036转237393 提前来访|预约看房登记销售一对一接待
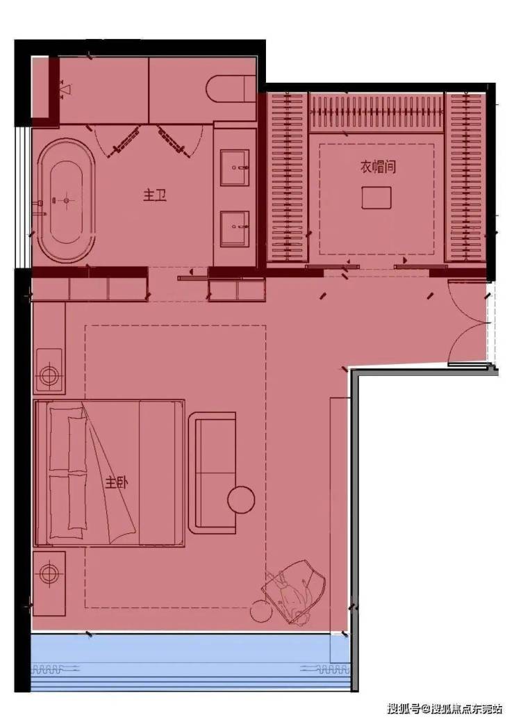
项目建面约300㎡的户型非常值得解读一番。独立电梯厅、入户主仆双动线尊崇设计、8.1米超大面宽的客厅、让你在家中也能打高尔夫的大阳台、酒店总统套房级别的主卧、3个卧室朝南、『4+1』房神户型,几乎满足了顶奢户型的所有美好想象!
两梯两户,电梯直达室内玄关,入户处设置玄关衣帽间,从进门开始,就能让你卸下精神的盔甲,尽享归家的轻松与愉悦。户型更设置主仆双动线设计,划分保姆家政动线与主人活动动线,迎宾更有面,豪横气场堪称大平层中的天花板。

东莞瑧湾汇售楼处电话:400-156-0036转237393 提前来访|预约看房登记销售一对一接待
南北通透,通风采光足,把阳光清风“请”进家。在空间格局上,该户型四开间均是朝南,全屋开间朝南尺度拉伸达到约20.5米,采光通风更胜一筹。

东莞瑧湾汇售楼处电话:400-156-0036转237393 提前来访|预约看房登记销售一对一接待
景观阳台:长约12.3米,进深约2.4米的超级大阳台,在这里打打高尔夫球,享受片刻的宁静,累了的时候还可以坐在草地上,品茗看书,生出无尽的意趣。
客餐厅:宽敞独立的大方厅设计,整个空间超过100㎡,客厅8.1米超大面宽,仿佛星级酒店般餐客厅,夸张到可以在这里自由奔跑,而且拥有豪宅标配中西厨房、品茶区,兼有私密会客、小众宴请等多重高级社交功能。

东莞瑧湾汇售楼处电话:400-156-0036转237393 提前来访|预约看房登记销售一对一接待
Plus主卧套房:开间约4.6米,配备双洗手盆、大浴缸、独立衣帽间,堪比五星级酒店总统套房的既视感!
东莞瑧湾汇售楼处电话:400-156-0036转237393 提前来访|预约看房登记销售一对一接待
休息区:『4+1』房+4卫、三套房设计、三个卧室朝南、动静分区,互不打扰,如此稀缺的“爆款户型”,试问还有谁?
生活阳台:可以根据居者需求,改造成保姆家政空间,创变『4+1』房。

东莞瑧湾汇售楼处电话:400-156-0036转237393 提前来访|预约看房登记销售一对一接待
三间卧室都是开间朝南,内设干湿分离明卫与衣帽间的独立套房,并且老人房朝南外置景观阳台,将IMAX级景色揽入室内。除此之外,所有房间的开间竟都做到了约3.6米以上!
值得一提的是,得房率高低直接影响居住舒适性,高层的建筑物得房率约为72%,但瑧湾汇得房率达到82%,同等户型面积下,相当于多得一个30㎡套房主卧面积。
瑧湾汇,不仅仅是人居改善产品,更多的是代表城市发展格局的门面,占有了目前乃至未来东莞最核芯的城市资源,包括:东莞市政府、国贸中心、汇一城、黄旗山等等。
东莞瑧湾汇售楼处电话:400-156-0036转237393 提前来访|预约看房登记销售一对一接待
对于高净值圈层而言,他们享受出则繁华居享宁静的生活,而地处南城行政文化中心的瑧湾汇,正好探索出匹配高净值圈层的大平层,刚好满足他们的居住需求。再加上,这里不仅圈层纯粹,而且生态低密。
瑧湾汇这个项目的出现,不仅弥补了南城行政文化中心高端住宅的遗憾,更是以非凡的地段和高规格的定位,重新定义东莞优质的大平层产品。此外,万科物业让服务更有温度。
还有一点,高阶的建筑立面,是奢宅的表现符号。瑧湾汇采用顶奢住宅才会选择的品质铝板外立面,用简洁的设计语言,勾勒出时尚而高级的质感,一众瞩目中更加烨烨生辉。
以上就是瑧湾汇的电话、楼盘详情、地址、户型、价格等相关信息,有兴趣了解瑧湾汇更多信息的朋友可以拨打售楼处电话:400-156-0036转237393【专人接听】,或添加微信:souhujiaodiandg咨询,即可了解在售户型图、项目介绍、最新特价房源、周边配套、预约看房等等信息!
声明:本文由入驻焦点开放平台的作者撰写,除焦点官方账号外,观点仅代表作者本人,不代表焦点立场。


